
Titia GelukCAD tekenaar
tuinarchitecten[email protected]Hilversum
Ik heb mij gespecialiseerd in het gedetailleerd uitwerken van schetsontwerpen. Hierbij richt ik mij voornamelijk op de tuinarchitectuur.
Het computerwerk kan ik voor u uit handen nemen als u zelf liever de handen uit de mouwen steekt en bezig bent met de praktische uitvoering van het creëren van de tuin.
Tijdens het proces help ik u van begin tot eind met het uitwerken van het (digitale) ontwerp.
Mijn diensten
Ik kan u het volgende aanbieden:
2D
Plattegronden
Ontwerpen uitwerken op schaal, eventueel in kleur.
Bestratingsplan intekenen
Oppervlakte en lengtes berekenen
Intekenen lichtplan
Hoogtes en maten
Doorsnedes constructies.
Fotobewerking: voor websites, reclame en presentatie-pdf’s.
3D
Presentatieafbeeldingen - deels of volledig.

Werkwijze
Ik werk met kadaster tekeningen die ik in de gewenste maat en schaal toestuur. Hierop kan de architect zijn ontwerp intekenen. Deze werk ik dan verder uit in AutoCAD, waarbij ik alle wensen in acht neem.Deze plattegronden kunnen in zwart/wit gemaakt worden, of verder uitgewerkt worden in kleur. Alles is bespreekbaar.Zijn er andere, hieraan gerelateerde, wensen? Laat het mij weten. Ik sta altijd open voor ideeën.
--Het is gebruikelijk om zo veel mogelijk van de indeling van het huis aan te geven in de tekening vanwege de zichtlijnen op de tuinen. Voor de website heb ik deze indelingen weggehaald.--
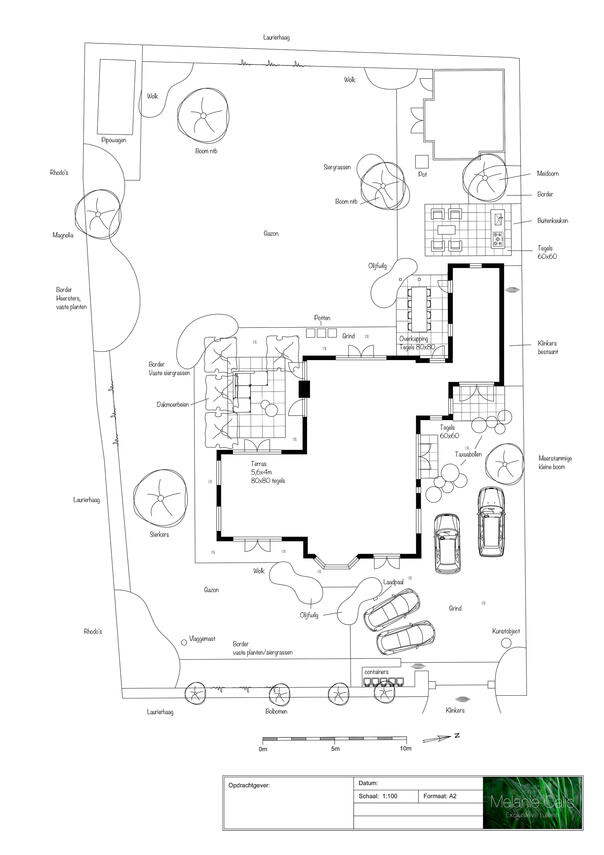
Dit is de uitgewerkte tuin.
Plattegronden
De ruwe schets die ik ontvang van de tuinarchitect, werk ik uit in CAD en ik lever een volledig uitgewerkte plattegrond aan. In zwart/wit of wanneer gewenst, ingekleurd.
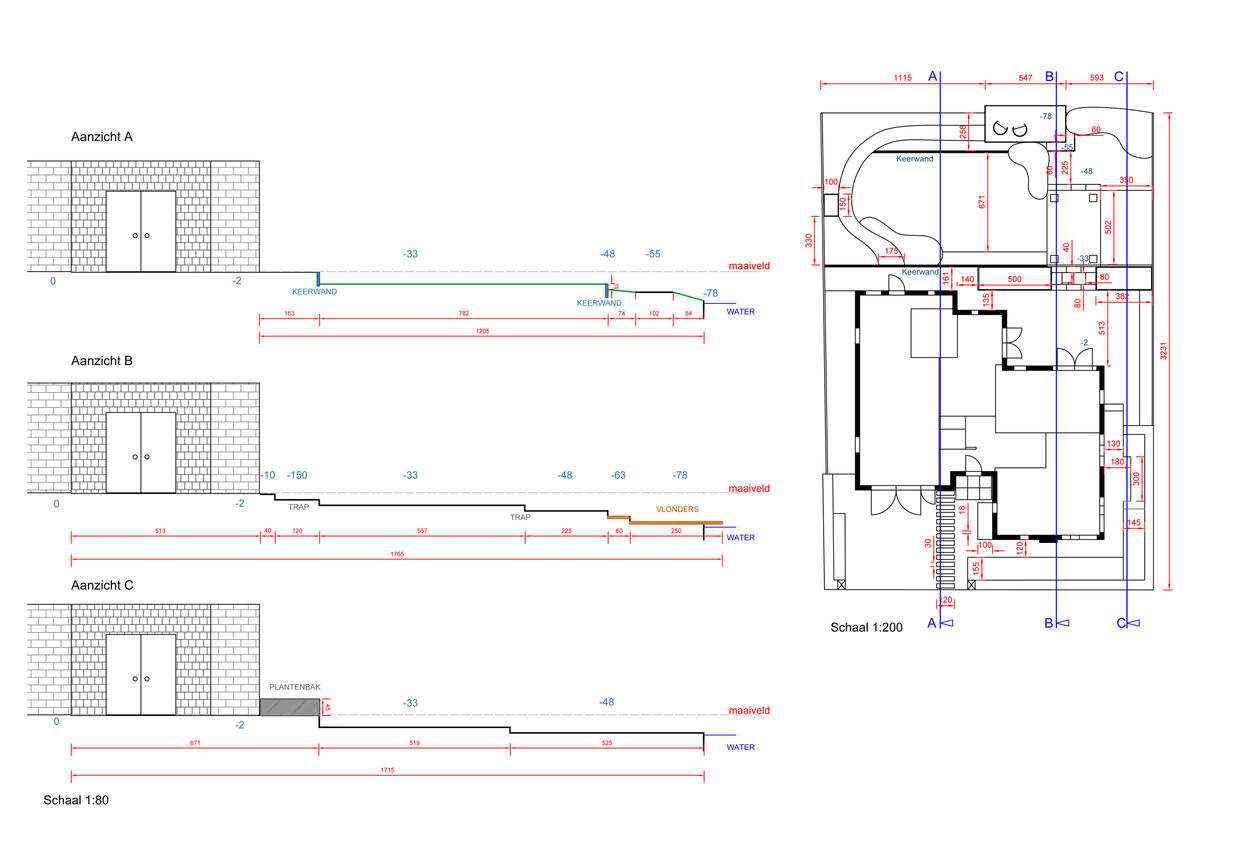
Technische tekeningen
Hierin verwerk ik alle technische informatie die nodig is om tot een volledig bruikbaar en professioneel ontwerp te komen.
Maten
Lengtes gebogen vormen
Hoogtes
Oppervlakten
Bestrating
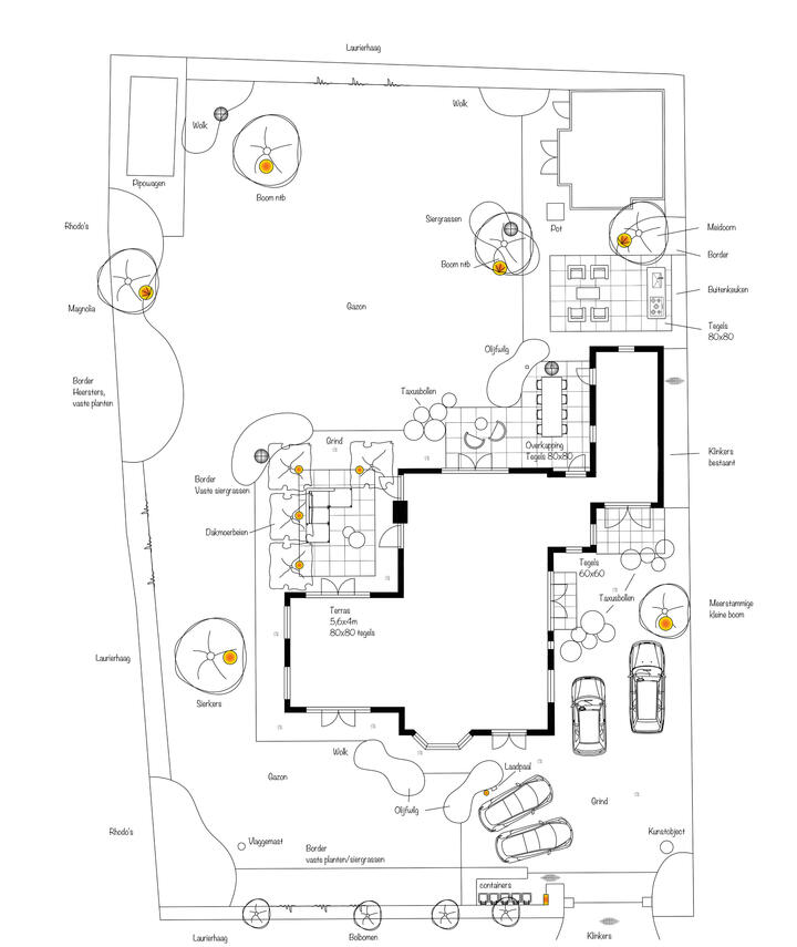
Lichtplan
Overige informatie
3D presentaties
Met 3D-presentaties ontstaat een totaalbeeld van een tuin of woning nog voordat de eerste paal in de grond is geslagen. Het prikkelt het voorstellingsvermogen van de klant en dit maakt verdere detaillering van het beoogde eindresultaat gemakkelijker. Ik maak 3D-presentaties met SketchUp, D5 Render en Photoshop.Ik kan hierbij de volgende 3 mogelijkheden aanbieden:
1. Eenvoudig uitgewerkt
Hierbij zet ik het huis eenvoudig neer, met daarbij het gedeelte van de tuin dat uitgebeeld moet worden om de klant een goed beeld te geven. Met name als het gaat om trappartijen en dergelijke dan geeft dat een mooie indruk.
2. Eenvoudig huis met uitgebreide tuin
Dit idee kan uitgebreid worden naar een meer uitgewerkte 3D uitwerking van de tuin. Het huis is simpel opgezet en is enkel wat aangekleed met texturen. De tuin wordt uitgebreid uitgebeeld.
3. Compleet huis en tuin uitgewerkt.
Hierbij maak ik het huis ook zo realistisch mogelijk na. Het voordeel hiervan is dat er kijkjes van binnen naar buiten gemaakt kunnen worden.
Deze tuinen zijn ontworpen en gerealiseerd door Melanie Calis.
Tarief
Mijn uurtarief is € 50,- per uur. (exclusief BTW)
Dit noteer ik per kwartier.
Wie ik ben

Als vervolgopleiding mocht ik kiezen tussen een grafische opleiding of een opleiding tot edelsmid. Ik koos voor het laatste en daar heb ik geen spijt van gehad. Het vak is veelomvattend en prachtig om te doen. Het mooiste hieraan was om het soldeer met de juiste techniek door de te solderen naad te begeleiden.
Naast het zelfstandig ondernemerschap doe ik werk waar mijn vaardigheden als reparateur erg gewaardeerd worden. Ging het vroeger om zilveren voorwerpen, zo gaat het nu om gevoelige elektronische componenten die met tinsoldeer op printplaten worden gesoldeerd. Leuk en voldoening schenkend werk.
Toch liet het creatieve grafische vak mij niet los. Er kwam steeds meer de wens om mij hierin te ontwikkelen. Omdat ik begaan ben met de natuur besloot ik een cursus tuinarchitectuur te volgen. Daar ontdekte ik het werken met de computer en de schat aan mogelijkheden die de technologie bracht. Tegelijkertijd kwam ik er achter dat ik de voorkeur had om ondersteunend te zijn bij het creatieve proces van de architect dan dat ik zelf zou gaan ontwerpen. Mijn vingers bleken ook niet erg groen. Maar ik wist nu wel wat ik écht wilde en begon mij te specialiseren.Dat ik gek ben op het werken met computers en in het bijzonder de tekenprogramma’s blijkt uit de vele cursussen die ik gevolgd heb. Ik begon met Vectorworks en dat werd opgevolgd met cursussen Autocad, Affinity Photo/Designer/Publisher, Photoshop, Sketchup, Lumion, D5 render en een LOI-cursus ‘Fotografie en beeldbewerking’.Om het in de praktijk te brengen ben ik stage gaan lopen bij Melanie Calis Tuinen. In maart 2020 heb ik mijn eigen bedrijf opgestart. Als zelfstandig ondernemer richt ik mij op tuinarchitecten die zelf geen tijd of zin hebben om achter de computer hun ontwerpen uit te werken.Ik ben nuchter in mijn doen en laten en treedt niet graag op de voorgrond. Ik ben loyaal, vriendelijk en bereid om mij altijd goed in te zetten. Tijdens het proces zoek ik graag mee tot we een mooi product hebben waar de architect tevreden mee naar de klant kan.
































